Beschrijving

Op een rustige, groene locatie, centraal gelegen in de kindvriendelijke woonwijk “de Maten” is deze fors uitgebouwde hoekwoning gelegen met energielabel B. De woning beschikt over een parkeerplaats op eigen terrein, een houten berging en een veranda, gebouwd in 2023. Het geheel is gelegen op een perceel van 197 m2. 

De woning heeft een gunstige ligging op loopafstand van winkelcentrum “de Eglantier”. Een veelzijdig, compleet winkelcentrum met winkels voor alle dagelijkse benodigdheden. Ook zijn in de wijk meerdere basisscholen, een middelbare school, treinstation en het “Matenpark” te vinden. Snelwegen, A1 en A50, zijn in maximaal 10 autominuten te bereiken. 

Indeling:
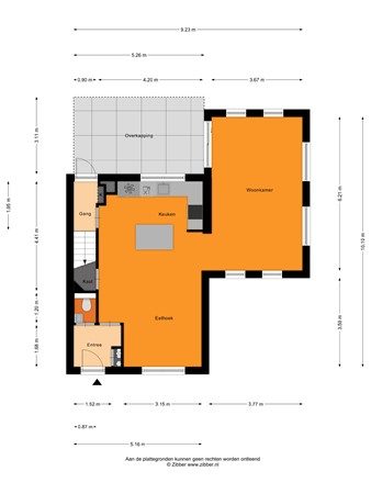
Entree/hal, meterkast (vernieuwd in 2020) en toilet met fonteintje. Binnenkomst in de ruime woonkeuken, het gezellige middelpunt van de woning! De keuken is in 2020  geplaatst, compleet uitgevoerd met diverse inbouwapparatuur waaronder een 6-pits inductiekookplaat met afzuigkap, oven, vaatwasser en een Quooker. De koelvriescombinatie staat los, maar maakt wel onderdeel uit van de keuken en blijft achter. In 2017 is aan de zijkant van de woning een uitbouw gerealiseerd van 23 m2. Deze ruimte is in gebruik als woonkamer. De uitbouw is volledig geïsoleerd, voorzien van vloerverwarming, kunststof kozijnen en een schuifpui met toegang tot de tuin. Vanaf de keuken is er een doorgang naar een tweede hal met achteringang en trapopgang naar de verdieping.  

Eerste verdieping:
Overloop, drie slaapkamers en een badkamer. Aan de hoofdslaapkamer grenst een derde slaapkamer, die momenteel in gebruik is als inloopkast. De moderne badkamer beschikt over een inloopdouche, dubbel wastafelmeubel en een toilet. 

Tweede verdieping:
Overloop met aansluiting voor de was- en droogapparatuur, opstelling C.V. ketel (Remeha, 2019) en veel bergruimte. In 2016 is er aan de achterzijde over de volle breedte een kunststof dakkapel geplaatst. Zodoende zijn er twee extra slaapkamers gecreëerd op de zolderverdieping. 

Info:
- Op de woning liggen 6 zonnepanelen, geplaatst in 2023;
- Op de gehele begane grond ligt keramisch parket, met vloerverwarming in de aanbouw;
- De eigenaren zijn bezig met de aankoop van een extra stuk grond van circa 17 m2. De definitieve oppervlakte zal blijken na inmeting door het Kadaster; 
- De woning beschikt over een laadpaal;
- Deze woning heeft een energielabel B (geldig tot 16-12-2035).

Wij maken gebruik van de modelkoopovereenkomst van de NVM. Daarnaast worden er extra clausules toegevoegd, te weten de asbestclausule en de ouderdomsclausule.

Vraagprijs € 449.500,- k.k.
Aanvaarding in overleg

Interesse in dit huis? Schakel direct uw eigen NVM aankoopmakelaar in. Uw NVM aankoopmakelaar komt op voor uw belang en bespaart u tijd, geld en zorgen.

Kenmerken