Beschrijving
Net buiten de kern van Beekbergen is deze half vrijstaande woning gelegen op een mooi perceel van 879 m2. Op het perceel staat een ruime, in spouw gebouwde garage met een bergzolder en elektrische deur. Daarnaast is er een broeikas aanwezig, een gezellige veranda en een houtopslag. De woning is gebouwd in de jaren ’30, maar is in de afgelopen jaren volledig na-geïsoleerd én voorzien van zonnepanelen waardoor de woning beschikt over een energielabel A. Daarnaast is de woning is in de afgelopen jaren gemoderniseerd waardoor het een instapklare woning betreft!
Vrij wonen, maar toch op korte afstand van voorzieningen, dat is wonen aan De Els! In 5 minuten is de kern van Beekbergen te bereiken met diverse voorzieningen waaronder een basisschool, supermarkt en verschillende zorg- en sportfaciliteiten. Beekbergen ligt ook perfect t.o.v. de A1 en A50, beiden in 5 minuten te bereiken waardoor steden als Deventer, Arnhem, Amersfoort en Amsterdam uitstekend bereikbaar zijn.
Indeling:
Via entree/hal bereik je de woonkamer. Deze fijne ruimte beschikt over een knusse houtkachel, PVC vloer en een hoekje welke perfect gebruikt kan worden als werk-/ studeerplek. De keuken is vernieuwd in 2019 en is voorzien van alle denkbare inbouwapparatuur waaronder een 4-pits inductiekookplaat met afzuigkap, een vaatwasser, combi oven, oven en een koelvriescombinatie. Er is daarnaast een berging aanwezig waar zich de aansluiting voor de was- en droogapparatuur bevindt. Hal met trapopgang, trapkast met vernieuwde meterkast en toilet met een extra douche.
Verdieping:
Overloop, drie slaapkamers, badkamer en een berging met opstelling C.V. ketel (Remeha, 2024). De luxe badkamer beschikt over een kunststof dakkapel en is vernieuwd in 2020. De badkamer beschikt over een dubbel wastafelmeubel, inloopdouche en een toilet. Twee van de drie slaapkamers beschikken over een inbouwkast. Deze twee slaapkamers beschikken tevens over een nieuw hardhouten kozijn met HR++ beglazing.
Middels een vlizotrap is de bevloerde bergzolder te bereiken.
Info:
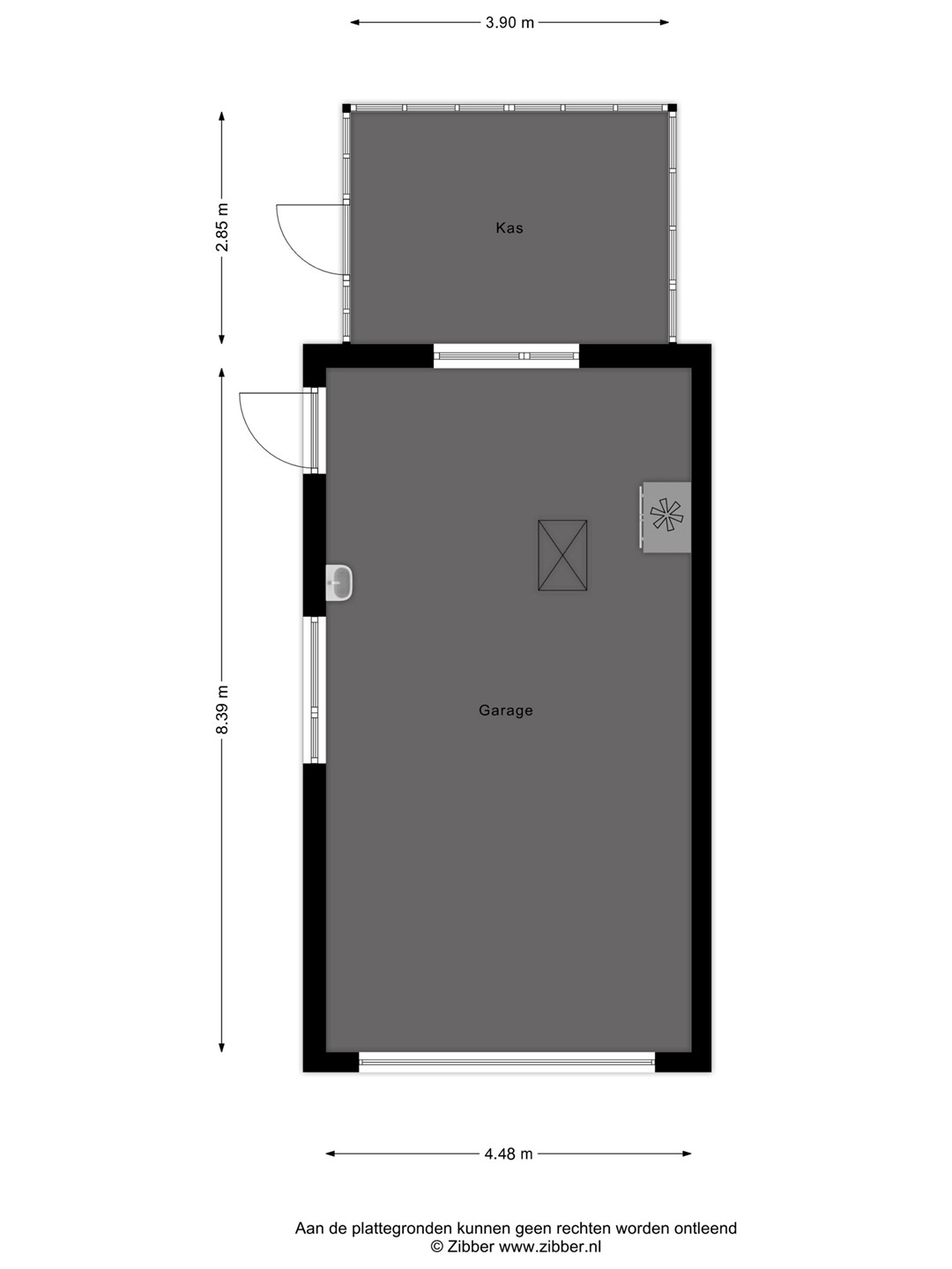
- De garage beschikt over water, elektra en een gasaansluiting. Middels een vlizotrap is de bergzolder te bereiken en het dak is geïsoleerd met Unidec dakplaten;
- De 8 zonnepanelen zijn geplaatst in 2016;
- Zowel de begane grond als de verdieping beschikken over een airco om te koelen en te verwarmen (geplaatst in 2022 en 2023);
- Op de oprit is een laadpaal aanwezig en deze is bij de koopsom inbegrepen;
- De woning beschikt over een energielabel A (geldig tot 20-09-2027).
Wij maken gebruik van de modelkoopovereenkomst van de NVM. Daarnaast worden er extra clausules toegevoegd, te weten de ouderdomsclausule en asbestclausule.
Vraagprijs € 719.000,- k.k.
Aanvaarding in overleg
Interesse in dit huis? Schakel direct uw eigen NVM aankoopmakelaar in. Uw NVM aankoopmakelaar komt op voor uw belang en bespaart u tijd, geld en zorgen.