Beschrijving

Uitstekend onderhouden rietgedekt landhuis met slaap- en badkamer op de begane grond, op een top locatie! Wat de locatie zo bijzonder maakt is de vrije ligging op een perceel van ruim 5.000 m2, maar te voet is de kern van Beekbergen te bereiken. Dus alle voorzieningen zijn binnen handbereik! De villa wordt omringd door een prachtig aangelegde tuin, een ruime oprit, aangebouwde veranda en een dubbele garage welke is gebouwd in de stijl van de villa. Achter de woning is een weiland aanwezig met twee paardenstallen, maar ook een perfecte wei voor schapen, geitjes of andere dieren. Het leuke is dat je vanuit de woonkamer en woonkeuken geniet van het uitzicht over je eigen weiland. De, in 2002 gebouwde woning is onder architectuur gebouwd, is volledig geïsoleerd, voorzien van dubbele beglazing en een hybride warmtepomp. Zodoende beschikt de woning over een energielabel A. 

Beekbergen is een geliefd Veluws dorp met een basisschool, winkelvoorzieningen, sport, horeca en zorg. Het centrum van Apeldoorn is bereikbaar binnen vijftien autominuten en het centrum van Arnhem ligt op twintig autominuten afstand. De snelwegen A1 en A50 zijn bovendien binnen een paar minuten te bereiken, wat de locatie erg aantrekkelijk maakt. Wandelen, fietsen en mountainbiken kan in de nabij gelegen Veluwse bossen en de prachtige IJsselvallei, waar bomen, heidevelden, zandvlakten en uiterwaarden elkaar afwisselen. 

Indeling:
Binnenkomst in de riante hal met garderobe, toilet met fonteintje en de meterkast. Vanaf de hal is zowel de woonkamer als de slaapkamer te bereiken. De woonkamer is ruim (kleine 50 m2) en speels door de ronde vorm aan de tuinzijde. Tevens bevindt zich hier de schouw met open haard. Genoeg ingrediënten om een fijne living te realiseren met meerdere zithoeken en eventueel een eethoek. Middels en suite deuren is de tuingerichte woonkeuken te bereiken. Hier zijn twee schuifpuien aanwezig wat zorgt voor verbinding met het aangrenzende terras. De keuken is geplaatst in een hoekopstelling en beschikt over diverse inbouwapparatuur waaronder een 4-pits inductiekookplaat met afzuigkap, combi oven, koelkast, vaatwasser en een quooker. Aangrenzend aan de keuken bevindt zich de bijkeuken met een vaste kast en de aansluiting voor de was- en droogapparatuur. 

De hoofdslaapkamer is een fijne ruimte met een eigen badkamer en een inloopkast. De badkamer is zeer compleet uitgevoerd met een inloopdouche, infraroodsauna, dubbel wastafelmeubel, toilet en een bidet. 

De gehele begane grond wordt verwarmd middels vloerverwarming. 

Verdieping:
Overloop, drie slaapkamers, badkamer en een technische ruimte. Alle slaapkamers zijn ruim van formaat, twee met een dakraam en één met een dakkapel. Tevens is op de verdieping een tweede badkamer aanwezig met ligbad-/douchecombinatie, wastafel en een toilet. Er is vloerverwarming aanwezig. In de technische ruimte staan de Atag C.V ketel (2024) en de Stiebel Eltron warmtepomp opgesteld. 

Middels een vlizotrap is de bevloerde bergzolder te bereiken. 

Info:
- Er zijn deels elektrisch bedienbare screens aanwezig en de aangebouwde veranda beschikt over zonwering; 
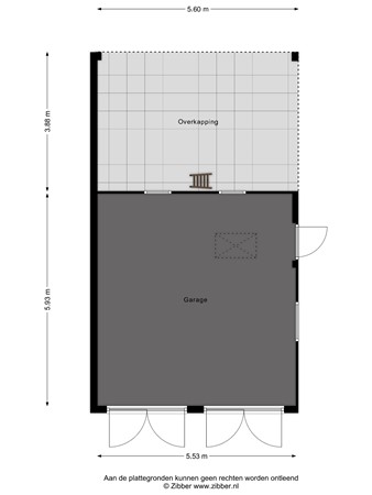
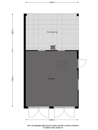
- De dubbele garage heeft een vlizotrap met toegang tot de bergzolder; 
- De inductiekookplaat en de vaatwasser zijn beiden vervangen in 2022;  
- De woning beschikt over een energielabel A (geldig tot 01-05-2035);

Wij maken gebruik van de modelkoopovereenkomst van de NVM. Daarnaast wordt er een extra clausule toegevoegd, te weten de ouderdomsclausule.

Vraagprijs € 1.395.000,- k.k.
Aanvaarding in overleg 

Interesse in dit huis? Schakel direct uw eigen NVM aankoopmakelaar in. Uw NVM aankoopmakelaar komt op voor uw belang en bespaart u tijd, geld en zorgen.

Kenmerken