Beschrijving

Een uniek stukje onroerend goed, een NSW landgoed, midden in de bossen van Beekbergen, op een perceel van maar liefst ruim 11 hectare (111.000 m2)! Een idyllische plek voor wie houdt van het buitenleven. Via een zandpad, omringd door groen, bereik je één van de weinige woningen gelegen aan de Zonnegloren. Via een oprijlaan wordt de villa bereikt mét dependance. In 1998 is de volledig onderkelderde villa opgeleverd, het bijgebouw in 2010. Deze traditioneel gebouwde villa straalt degelijkheid uit. De woning is gebouwd met hoogwaardige materialen: betonnen vloeren (met vloerverwarming op de begane grond), veel hardhout (kozijnen, deuren en trappen) en marmer. Dankzij energielabel B geniet je hier van veel comfort dankzij goede isolatie! In dezelfde stijl, is het dependance gerealiseerd met onderliggende garage. Deze villa met dependance biedt genoeg ruimte voor grote gezinnen, gasten, kantoor en/of praktijk aan huis. 

Op het terrein staan meerdere bijgebouwen waaronder een nieuw gebouwde kapschuur (2024) met berging en carport voor twee auto’s, tuinhuis met overkapping, een volière, stallen en kennels. Een perceel wat zich uitstekend leent voor het houden van diverse dieren. De woning is omringd door een enorme tuin met diverse terrassen, een gazon, veel beplanting en een enorm bosterrein. Omdat het landgoed gelegen is in Natura 2000 gebied bent u verzekerd van een fantastische, besloten ligging, met talloze recreatiemogelijkheden. Vanaf het terrein bereik je direct de zandpaden van een rustig gedeelte van de Veluwe, waar je uren kunt ronddwalen zonder een mens te zien.

Het perceel is voorzien van een toegangspoort en is volledig omheind. Midden in de natuur gelegen, maar toch dichtbij de bewoonde wereld: binnen 15 minuten in de mooie stad Apeldoorn met al z’n voorzieningen, 20 minuten van Arnhem en via de A1 in een uur in Amsterdam. Het gezellige dorp Beekbergen ligt op korte afstand en voorziet in alle dagelijkse boodschappen, met supermarkt, bakker en slager.

Een NSW landgoed brengt veel fiscale voordelen met zich mee. Zo is een NSW landgoed vrijgesteld van overdrachtsbelasting, je betaalt minder onroerendezaakbelasting en geen schenk- en erfbelasting. 

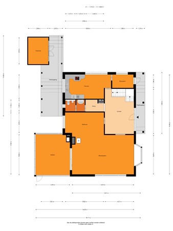
Indeling:
Ruime, open entree/hal, uitgebreide groepenkast met 3 fasen aansluiting en krachtgroepen, garderobe en toiletruimte met toilet en urinoir en voorportaal met wastafelmeubel. Rechts bevindt zich de woonkeuken. Een prettige, lichte ruimte met een massief houten keuken van kersenhout met diverse inbouwapparatuur. Aansluitend bevindt zich een bijkeuken met achteringang. Ruime woonkamer met vele raampartijen met prachtig zicht over het eigen perceel. Circa 10 jaar geleden is er een serre aangebouwd van waaruit je geniet van de vogels, eekhoorntjes en wild! 

Verdieping:
Overloop met separaat toilet, drie slaapkamers waarvan een zeer royale hoofdslaapkamer met loggia. De badkamer is ruim en compleet uitgevoerd met whirlpool, inloopdouche, dubbel wastafelmeubel en vloerverwarming. 
Via een vlizotrap is de volledig bevloerde bergzolder te bereiken. 

Souterrain:
Onder de gehele woning bevindt zich een souterrain. Dit souterrain is verdeeld in drie ruime vertrekken en heeft tevens een aparte toegang van buitenaf, waardoor het bijvoorbeeld ook ideaal is om te gebruiken als kantoor en/of praktijkruimte. In één van de ruimtes bevindt zich de Nefit C.V. ketel. Daarnaast is er een bijkeuken aanwezig met veel bergruimte en een aansluiting voor de was- en droogapparatuur. 

Dependance:
Eén van de pluspunten van dit bijzondere object is de aanwezigheid van een dependance. Het dependance is voorzien van twee verdiepingen en heeft eigen voorzieningen zoals een keuken, badkamer, toilet en eigen C.V. ketel. Op de begane grond is een hal aanwezig met keuken en woonkamer. De bovenverdieping beschikt over twee slaapkamers en een badkamer. 

Onder het dependance is ruime garage aanwezig met tweede C.V. ketel, groepenkast en een aansluiting voor de was- en droogapparatuur. De garage is bereiken via een hellingbaan en is voorzien van een elektrische deur en een loopdeur. 

Info:
- Het bijgebouw betreft een dependance wat betekent dat je het officieel kunt verhuren en een huurder zich ook in kan schrijven; 
- Nagenoeg alle bijgebouwen zijn voorzien van elektrapunten; 
- De garage is voorzien van een vloeistofdichte vloer. 

Wij maken gebruik van de modelkoopovereenkomst van de NVM. Daarnaast worden er extra clausules toegevoegd, te weten de ouderdomsclausule en asbestclausule. 

Vraagprijs € 2.595.000,- v.o.n.
Aanvaarding in overleg 

Interesse in dit huis? Schakel direct uw eigen NVM aankoopmakelaar in. Uw NVM aankoopmakelaar komt op voor uw belang en bespaart u tijd, geld en zorgen.

Kenmerken