Beschrijving
In de moderne en groen opgezette nieuwbouwwijk Zonnehoeve staat deze luxe en duurzame vrijstaande villa aan Het Sparrenbos 44. Gebouwd in 2018, maar liefst 278 m2 woonoppervlakte en gelegen op een perceel van 535 m2. De villa is volledig onderkelderd, beschikt over een aangebouwde garage, een sfeervolle tuinkamer en geïsoleerde berging welke tevens als kantoor of atelier gebruikt kan worden. De fraai aangelegde tuin rondom de woning biedt optimale privacy. Parkeren kan eenvoudig op eigen terrein, met ruimte voor meerdere auto’s. Een stijlvolle villa voor wie op zoek is naar ruimte, luxe en comfort!
Dankzij de kunststof kozijnen met triple glas, de uitstekende mate van isolatie, de 12 zonnepanelen en een energiezuinige bodemwarmtepomp beschikt het woonhuis over een A+++ label. De gehele begane grond, eerste verdieping en het souterrain zijn uitgerust met comfortabele vloerverwarming. Volledig voorbereid op de toekomst en energiezuinig!
De wijk Zonnehoeve is gelegen aan de oostzijde van Apeldoorn, op circa 10 minuten afstand van het centrum van Apeldoorn. Diverse wijkwinkelcentra zijn dichterbij gelegen zoals winkelcentrum ’t Fort en winkelcentrum de Eglantier, waar tevens een ruim winkelaanbod te vinden is. Bereikbaarheid is tevens een groot pluspunt van deze wijk. In de wijk bevindt zich een treinstation (de Maten) en in 5 á 10 minuten zijn zowel de A1 als de A50 te bereiken.
Indeling:
Entree/hal, toilet met fonteintje en uitgebreide meterkast. Aan de voorzijde van de woning bevindt zich de ruime living met grote raampartijen en een sfeervolle open haard. In het hart van de woning bevindt zich de eethoek, die de woonkamer en keuken met elkaar verbindt. Middels openslaande deuren is het aangrenzende terras te bereiken. De tuingerichte woonkeuken is de ideale plek voor culinaire creativiteit en gezellige momenten. De luxe keuken beschikt over een kook-/spoeleiland en is zeer compleet uitgevoerd met alle denkbare inbouwapparatuur zoals inductiekookplaat met een “Falmec” afzuigkap, stoomoven, vaatwasser, koffiemachine en een wijnklimaatkast. De Amerikaanse koelvriescombinatie staat los, maar behoort bij de keuken en blijft achter. Vanuit de keuken zijn dubbele openslaande deuren aanwezig die leiden naar de aangrenzende tuinkamer. De sfeervolle buitenhaard en de glazen schuifwanden maken het mogelijk om het hele jaar door te genieten van het buitenleven. Deze overdekte ruimte is een perfecte verlenging van de woonkeuken en biedt een heerlijke plek voor ontspanning of een avond borrelen met vrienden. Tevens is vanuit de keuken de aangebouwde, geïsoleerde garage te bereiken. In de garage staat de warmtepomp opgesteld en is een ruime inbouwkast aanwezig. Op de gehele begane grond ligt een monoliet betonvloer, met vloerverwarming.
Eerste verdieping:
Overloop met bergkast, separaat toilet met fonteintje, drie slaapkamers en twee modern ingerichte badkamers. De ruime hoofdslaapkamer is ruim van opzet en beschikt over een inloopkast en een badkamer en suite, uitgerust met een ligbad, inloopdouche en wastafelmeubel. Aan de achterzijde bevinden zich twee gelijkwaardige slaapkamers welke de beschikking hebben over de tweede badkamer. Ook compleet en luxe uitgevoerd met een inloopdouche, vrijstaand ligbad en dubbel wastafelmeubel. Op de gehele verdieping ligt een doorgelegde PVC vloer, in visgraat gelegd, eveneens met vloerverwarming.
Tweede verdieping:
Overloop met werkplek en nog eens twee slaapkamers. Daarnaast beschikt de zolder over veel bergruimte.
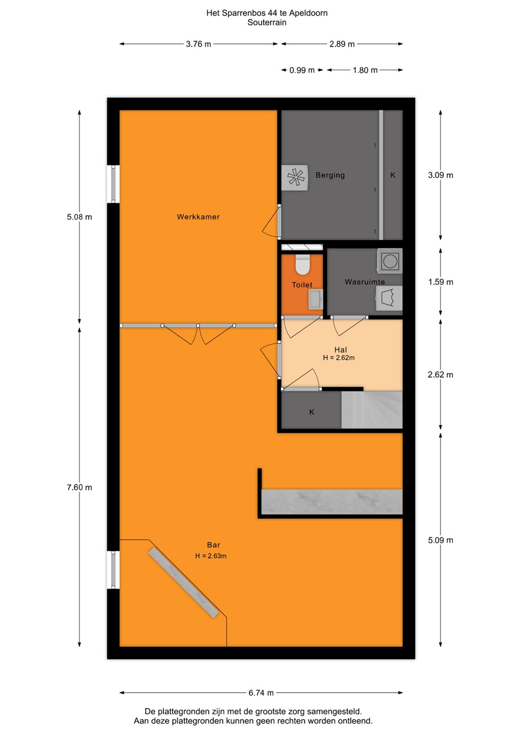
Souterrain:
Onder de gehele woning bevindt zich een souterrain met daglicht toetreding. Via de hal is de wasruimte te bereiken met aansluiting voor de was- en droogapparatuur en een toilet met fonteintje. Het souterrain is naar eigen wens in te richten voor diverse doeleinden, maar momenteel is het in gebruik als bar, sportruimte en opslagruimte. Een goede mix van sport, ontspanning en gezelligheid!
Info:
- Op de oprit is een eigen laadpaal aanwezig;
- Op het dak van de tuinkamer liggen 12 zonnepanelen;
- De woning is voorzien van een energielabel A+++ (geldig tot 14-11-2035).
Wij maken gebruik van de modelkoopovereenkomst van de NVM.
Vraagprijs € 1.395.000,- k.k.
Aanvaarding in overleg
Interesse in dit huis? Schakel direct uw eigen NVM aankoopmakelaar in. Uw NVM aankoopmakelaar komt op voor uw belang en bespaart u tijd, geld en zorgen.