Beschrijving
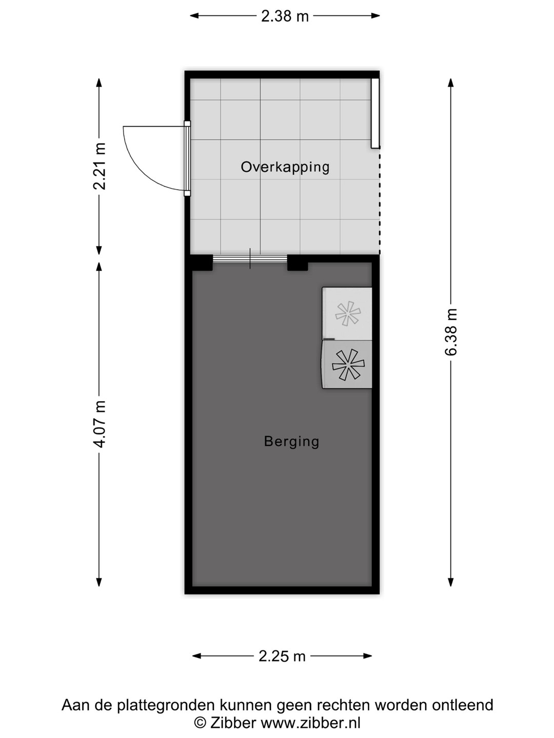
In een rustige, kindvriendelijke woonomgeving is deze ruime eengezinswoning gelegen met zonnige tuin met stenen berging, overkapping en een achterom. De woning is gelegen op een perceel van 146 m2. De woning is gebouwd in 1970, is volledig geïsoleerd en voorzien van dubbele beglazing. De woning beschikt over een woonoppervlakte van 123 m2, verdeeld over drie woonlagen.
Op loopafstand is winkelcentrum de Anklaar gelegen, een winkelcentrum met een gevarieerd winkelaanbod. Daarnaast zijn diverse voorzieningen zoals scholen (zowel basis- als middelbaar onderwijs), het Mheenpark, sportgelegenheden en zorgfaciliteiten in de nabije omgeving te vinden. De bereikbaarheid is uitstekend, mede door de gunstige ligging ten opzichte van snelwegen (A1 en A50).
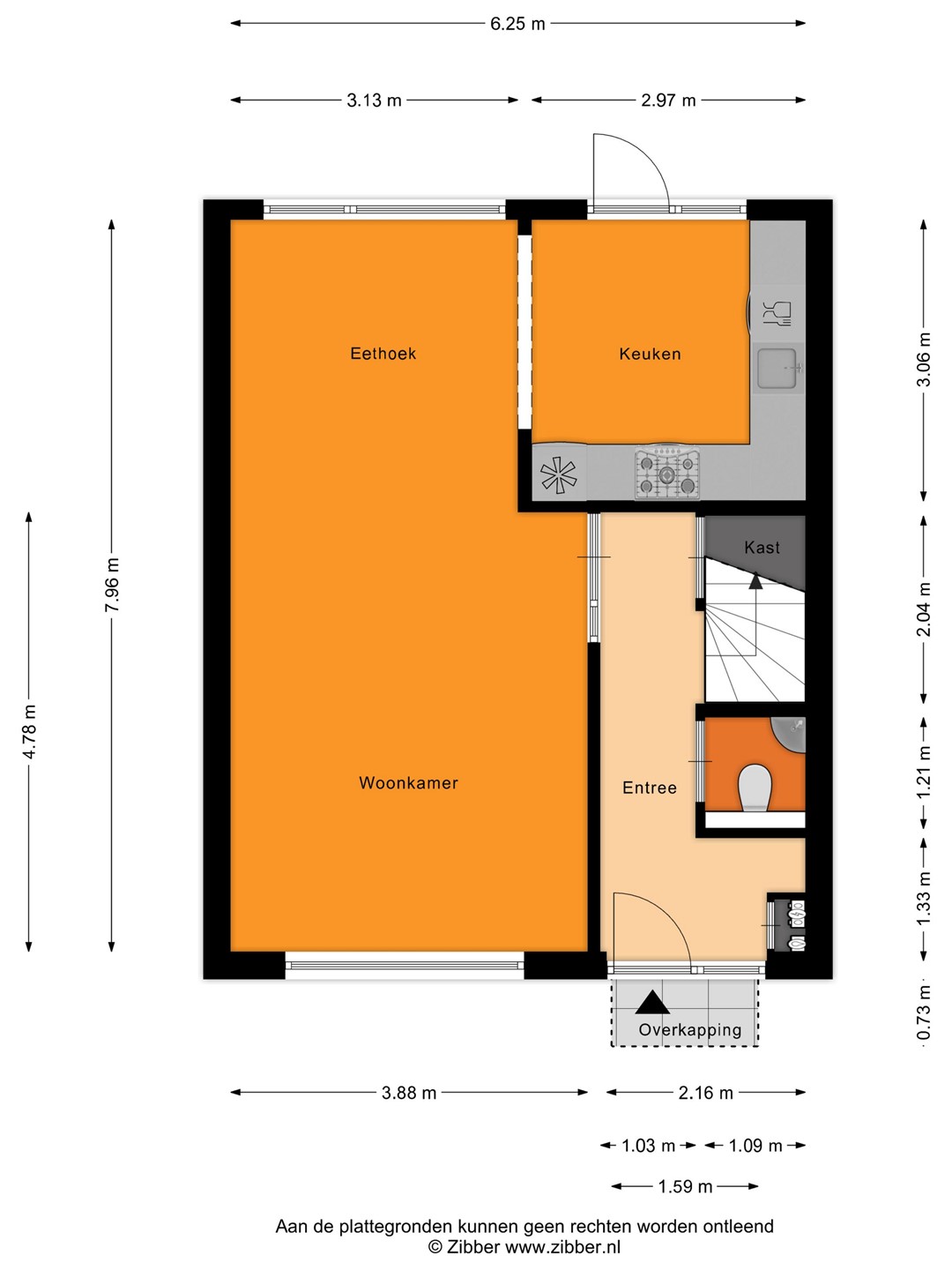
Indeling:
Entree/hal, meterkast, toilet met fonteintje en een praktische trapkast. Binnenkomst in de lichte doorzonwoonkamer met een doorgelegde laminaatvloer. Aan de voorzijde bevindt zich de zithoek en aan de achterzijde de eethoek met aangrenzend de keuken in een hoekopstelling. De keuken is geplaatst in 2016 en voorzien van diverse inbouwapparatuur waaronder een 5-pits “Boretti” kooktoestel met oven en afzuigkap, een vaatwasser en een koelkast. Vanaf de keuken is de tuin, gelegen op het zuidwesten, te bereiken.
Verdieping:
Overloop, drie slaapkamers en een badkamer. Alle slaapkamers zijn voorzien van HR++ beglazing. De badkamer is compleet uitgevoerd met een ligbad, douchecabine, wastafel en een toilet.
Zolder:
Overloop met aan beiden zijdes een berging met opstelling C.V. ketel (Remeha, 2010) en aansluiting voor de was- en droogapparatuur. Vierde slaapkamer met eigen wastafel, een dakraam en veel bergruimte.
Info:
- In 2024 is het buitenschilderwerk uitgevoerd en zijn de zinken dakgoten vervangen;
- De woning is voorzien van vloerisolatie (PUR), spouwmuurisolatie, dakisolatie en volledig HR++ beglazing. Dit heeft geresulteerd in een definitief energielabel A (geldig tot 16-05-2026);
- De woning is aan de achterzijde voorzien van een zonnescherm.
Wij maken gebruik van de modelkoopovereenkomst van de NVM. Daarnaast worden er extra clausules toegevoegd, te weten de ouderdomsclausule en asbestclausule.
Vraagprijs € 399.000,- k.k.
Aanvaarding in overleg