Beschrijving
Aan een rustige en kindvriendelijke straat in de wijk “Matendonk” ligt deze prachtig gemoderniseerde tussenwoning, waar stijl, comfort en duurzaamheid perfect samenkomen. De woning is de afgelopen jaren volledig aangepakt en afgewerkt op een hoogwaardig niveau, waardoor de woning instapklaar is! Aan duurzaamheid is ook gedacht door het plaatsen van 13 zonnepanelen (2022), een uitstekend geïsoleerd dak en kunststof kozijnen. Op de zolderverdieping zijn twee slaapkamers gerealiseerd, waardoor de woning in totaliteit over vijf slaapkamers beschikt. Daarnaast is er de mogelijkheid om op eigen terrein te parkeren onder de carport aan de voorzijde, waar zich tevens een berging bevindt.
De woning is gelegen in een fijne, rustige woonomgeving, op korte afstand van diverse voorzieningen zoals diverse scholen, treinstation Apeldoorn de Maten en winkelcentrum de Eglantier. Snelwegen, A1 en A50, zijn in circa 10 autominuten te bereiken. Het centrum van Apeldoorn is tevens gelegen op 10 minuten fietsafstand.
Indeling:
Entree/hal met garderobe. Deze entree betrof voorheen een overkapping bij de voordeur maar is bij de woning getrokken. Binnenkomst in de keuken waar zich tevens de meterkast bevindt. De moderne keuken is een echte eyecatcher en van alle gemakken voorzien waaronder een 4-pits inductiekookplaat met geïntegreerde afzuigkap, koelkast, diepvries, vaatwasser en een combi oven. Alle apparatuur is van het merk AEG, geplaatst in 2022. De woonkamer is licht en ruim en heeft en directe verbinding naar de tuin. De gehele woning is voorzien van gladde stucwanden en een stijlvolle visgraat vloer, wat zorgt voor een moderne uitstraling. Middels een hal is de trap naar de tweede verdieping te bereiken en tevens bevindt zich hier het vernieuwde toilet met fonteintje.
Eerste verdieping:
Overloop, drie slaapkamers en een badkamer voorzien van een inloopdouche, dubbel wastafelmeubel en toilet. De hoofdslaapkamer beschikt over een rolluik.
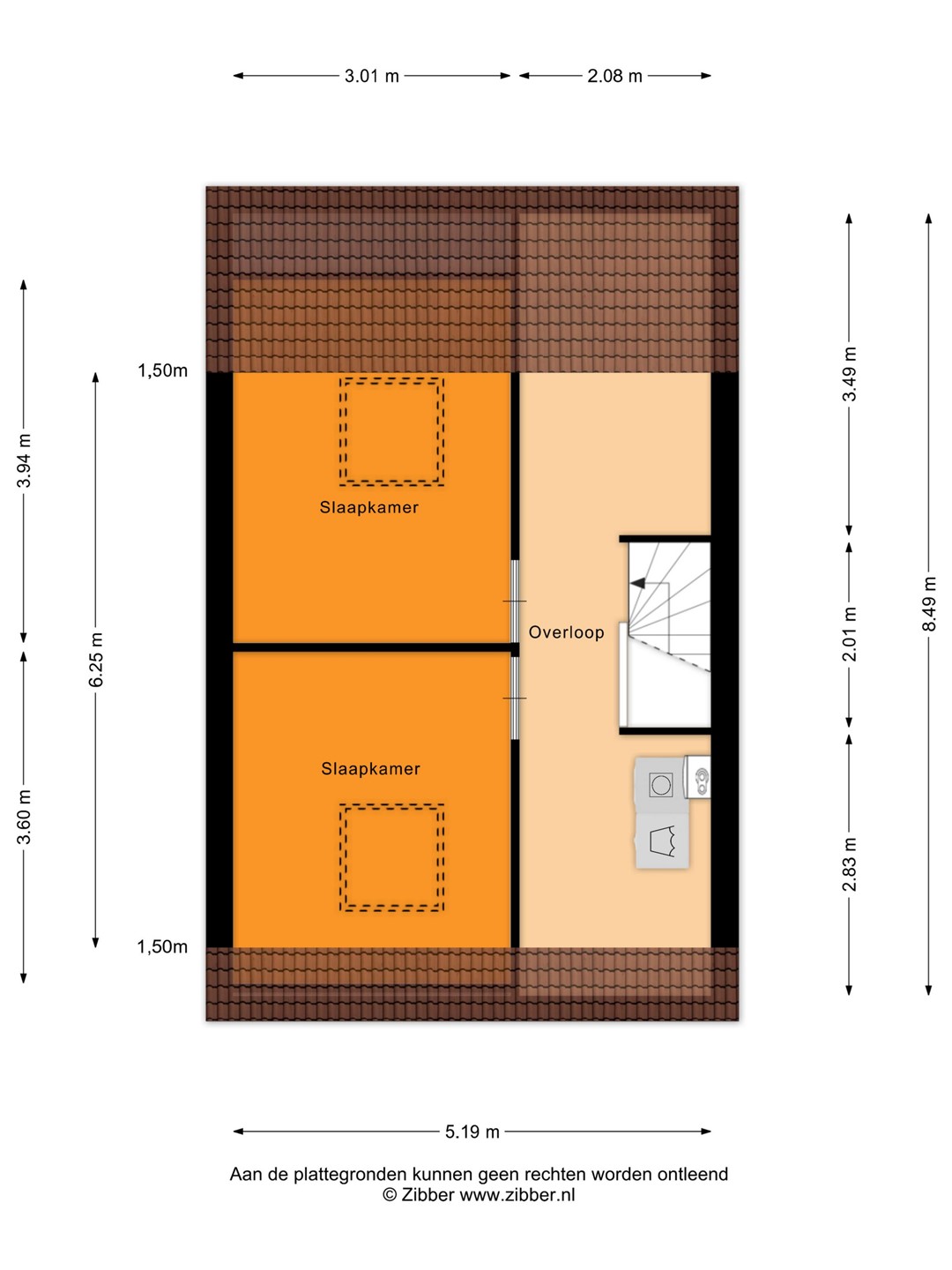
Tweede verdieping:
Overloop met aansluiting voor de was- en droogapparatuur en opstelling C.V. ketel (Intergas, 2008). Op de zolder zijn twee volwaardige slaapkamers aanwezig met beiden een dakraam.
De tuin is gelegen op het westen, waardoor je optimaal kunt genieten van de ochtend-, middag- en avondzon. In 2018 is de tuin volledig opnieuw aangelegd met moderne bestrating en plantenbakken. Aan de voor- en achterzijde van de woning is een elektrisch zonnescreen aanwezig. Daarnaast is er ook een elektrisch zonnescherm met knikarm over de volledige breedte van het terras aanwezig. Aan de achterzijde grenst de woning aan openbaar groen.
Info:
- Achterin de tuin is circa 10 m2 snippergroen in gebruik. Het is mogelijk om dit stukje grond te kopen van de gemeente voor een bedrag van circa € 100,- per m2, (exclusief notaris- en kadaster kosten);
- In 2010 is de gehele woning voorzien van kunststof kozijnen met HR++ beglazing;
- De woning beschikt over een energielabel B (geldig tot 13-09-2031). Na afgifte van het label zijn er 13 zonnepanelen geplaatst en is het dak nog eens met 15 cm extra geïsoleerd.
Wij maken gebruik van de modelkoopovereenkomst van de NVM. Daarnaast worden er extra clausules toegevoegd, te weten de asbestclausule en de ouderdomsclausule.
Vraagprijs € 425.000,- k.k.
Aanvaarding in overleg