Beschrijving
Aan de dorpsrand van het Veluwse dorp Beekbergen is deze vrijstaande woning gelegen welke geschikt is voor dubbele bewoning! Daardoor is de woning erg interessant voor het samenwonen met ouder of kind. De woning is gebouwd in 1959, maar er is veel gedaan aan verduurzaming. Zo is de woning grotendeels geïsoleerd, beschikt over 24 zonnepanelen met een thuisbatterij en daarnaast is er recentelijk een warmtepomp geplaatst. De woning beschikt grotendeels over kunststof kozijnen. Daarnaast is de woning op veel punten in de afgelopen jaren gemoderniseerd wat ten goede komt aan het wooncomfort. Onder de woning bevindt zich een souterrain met een dubbele garage en veel bergruimte. De tuin is gelegen rondom de woning. Het geheel is gelegen op 1.171 m2 en in 2024 is er een nieuwe schuur geplaatst.
Wonen in Beekbergen betekent wonen in het groen met vele voorzieningen binnen handbereik! Zo is de dorpskern van Beekbergen op loopafstand gelegen met diverse voorzieningen waaronder een supermarkt, bakker, slager, een basisschool en meerdere sport- en zorgfaciliteiten. Daarnaast zijn de snelwegen (A1 en A50) beiden in 5 minuten te bereiken waardoor steden als Arnhem, Deventer, Utrecht en Amsterdam goed bereikbaar zijn!
Indeling:
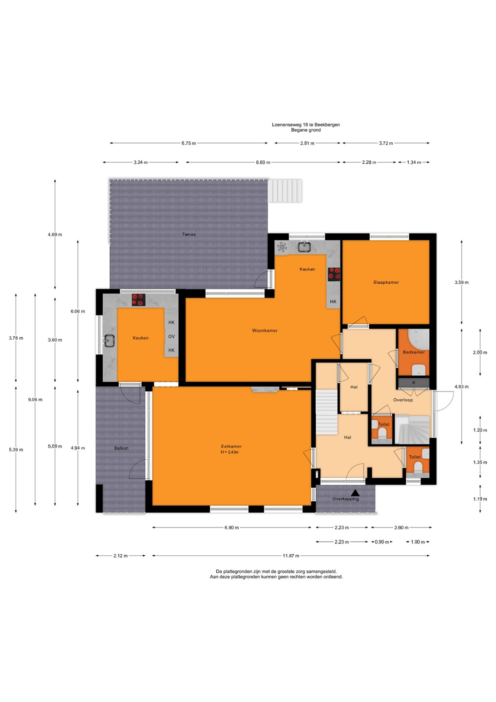
Entree/hal, toilet met fonteintje, garderobe en trapopgang naar de verdieping en naar de kelder. Binnenkomst in de ruime, lichte woonkamer met open haard en doorloop naar de keuken met achteringang. De keuken is geplaatst in 2021 en opgesteld in een u-vorm. De keuken is compleet uitgevoerd met diverse inbouwapparatuur waaronder 4-pits inductiekookplaat met geïntegreerde afzuigkap (Bora), koelkast, diepvries, vaatwasser en een grote oven. Vanaf de keuken is er toegang tot het overdekte terras. De woonkamer en keuken wordt verwarmd middels vloerverwarming. Via de entree/hal is tevens de achterliggende woning te bereiken. Dit gedeelte beschikt volledig over eigen voorzieningen en een eigen toegang via de zijkant van de woning. Binnenkomst in de hal met vaste kast met opstelling C.V. ketel (Remeha, 2022) en boiler (Weheat, 2025), toilet met fonteintje en badkamer met douchecabine en wastafelmeubel. Naast de badkamer is de slaapkamer aanwezig met triple beglazing uit 2023. Doorloop naar de woonkamer met mooi uitzicht over de tuin en een open keuken met een 4-pits keramische kookplaat met afzuigkap. Vanaf de hal is tevens het souterrain te bereiken.
Verdieping:
Overloop met inbouwkasten, drie slaapkamers en een moderne badkamer. De badkamer is geplaatst in 2019, beschikt over elektrische vloerverwarming en is uitgerust met een dubbel wastafelmeubel, toilet en een inloopdouche.
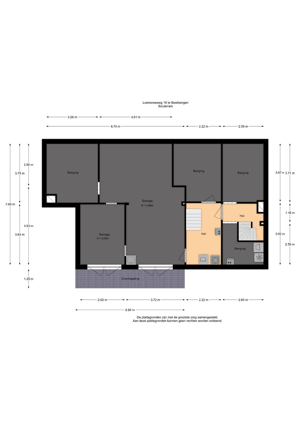
Souterrain:
Het souterrain is opgedeeld in verschillende vertrekken waaronder een dubbele garage, meerdere bergingen en twee bijkeukens, beiden met een meterkast en aansluitingen voor de was- en droogapparatuur.
Info:
- In 2006 is het asbest dakbeschot verwijderd, is het dak geïsoleerd en zijn er nieuwe pannen gelegd;
- De thuisbatterij is recentelijk geplaatst (1 komma 5) en heeft een opslag van 17,8 kWh;
- Circa 3 jaar geleden is de spouwmuur na-geïsoleerd;
- Aan de achterzijde van de woning is een zonnescherm aanwezig. Daarnaast beschikt de woning deels over screens en elektrische rolluiken op de hoofdslaapkamer;
- De woning beschikt over een definitief energielabel C (geldig tot 29-10-2035).
Wij maken gebruik van de modelkoopovereenkomst van de NVM. Daarnaast worden er extra clausules toegevoegd, te weten de ouderdomsclausule en asbestclausule.
Vraagprijs € 939.000,- k.k.
Aanvaarding in overleg
Interesse in dit huis? Schakel direct uw eigen NVM aankoopmakelaar in. Uw NVM aankoopmakelaar komt op voor uw belang en bespaart u tijd, geld en zorgen.