Beschrijving
Aan een rustig hofje in een bosrijke woonomgeving in Hoenderloo is deze uitstekend onderhouden tussenwoning uit 2013 gelegen. De woning beschikt over energielabel A en is volledig geïsoleerd. De woning heeft een woonoppervlakte van 109 m² en is gesitueerd op een perceel van 116 m². De zonnige achtertuin is gelegen op het zuiden en voorzien van een vrijstaande houten berging met sfeervolle overkapping.
De woning ligt in een rustige woonwijk met voldoende openbare parkeergelegenheid, omringd door de prachtige Veluwse bossen. Hoenderloo biedt de perfecte combinatie van rust, natuur en dorpsvoorzieningen. In het dorp zijn onder andere een supermarkt en basisschool aanwezig. De ingang van Nationaal Park De Hoge Veluwe met diverse wandel- en fietsroutes en het Kröller-Müller Museum ligt op slechts een paar honderd meter afstand. De uitvalswegen richting Apeldoorn, Arnhem en de A1/A50 zijn goed bereikbaar.
Indeling:
Entree/hal, meterkast en modern toilet voorzien van fonteintje. Middels een fraaie taatsdeur is de ruime woonkamer te bereiken met veel lichtinval dankzij de openslaande tuindeuren. Aan de voorzijde bevindt zich de open keuken in hoekopstelling, compleet uitgevoerd met diverse inbouwapparatuur waaronder een 6-pits gaskookplaat met afzuigkap en oven, koelvriescombinatie en een vaatwasser. Onder de trap is een praktische trapkast aanwezig welke momenteel is ingericht als werkplek. De begane grond is voorzien van een massief houten vloer met vloerverwarming.
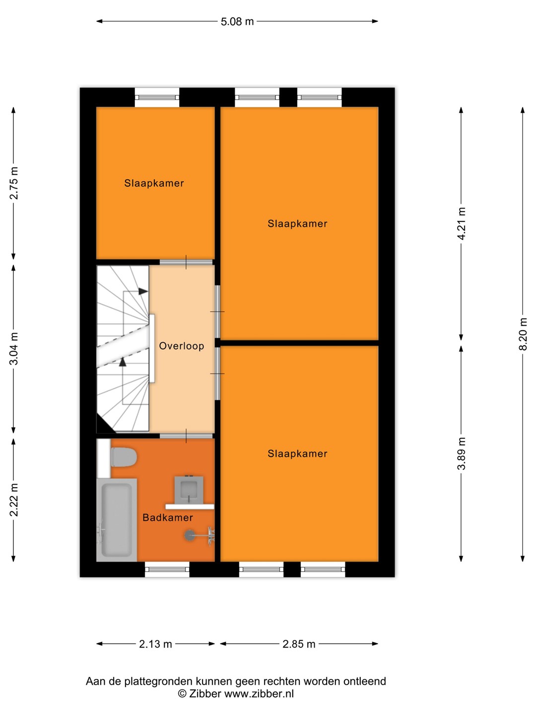
Eerste verdieping:
Overloop, drie slaapkamers en een moderne, volledig uitgeruste badkamer met ligbad, inloopdouche, wastafelmeubel en tweede toilet. De eerste verdieping is volledig voorzien een PVC vloer met vloerverwarming.
Tweede verdieping:
Via een vaste trap bereikbare zolderverdieping met dakraam, bergruimte, opstelling C.V.-ketel (Intergas, 2013), zonneboiler en aansluiting voor was- en droogapparatuur. Ook op deze verdieping ligt een PVC vloer. Een mooie ruimte voor het creëren van een extra slaapkamer!
Info:
- Woning volledig geïsoleerd en voorzien van energielabel A (geldig tot 21-01-2030);
- De begane grond en eerste verdieping worden verwarmd middels vloerverwarming, apart te regelen per ruimte;
- De vloertegels van zowel de badkamer als toilet zijn vervangen;
- Alle ramen zijn voorzien van horren.
Wij maken gebruik van de modelkoopovereenkomst van de NVM.
Vraagprijs € 489.000,- k.k.
Aanvaarding in overleg
Interesse in dit huis? Schakel direct uw eigen NVM aankoopmakelaar in. Uw NVM aankoopmakelaar komt op voor uw belang en bespaart u tijd, geld en zorgen.