Beschrijving
In een kleinschalige nieuwbouwwijk aan de rand van Lieren is deze uitgebouwde hoekwoning (2020) gelegen met zij- en achtertuin met eigen oprit, houten berging en achterom. De woning is zeer energiezuinig, beschikt over een A+++ label door de hoge mate van isolatie, de aanwezigheid van een warmtepomp en 12 zonnepanelen. Deze woning is uniek door de aanwezigheid van vijf ruime slaapkamers en het uitstekende afwerkingsniveau. Plan een bezichtiging en kom het zelf ervaren!
Het dorp Lieren is een Veluws dorp welke bekend staat om de Veluwse Stoomtrein en de centrale ligging t.o.v. Apeldoorn en Arnhem en de snelwegen (A1 en A50). Lieren beschikt over enkele voorzieningen waaronder een basisschool (op loopafstand), enkele winkels en een 18 holes golfbaan. Voor de wandel- en fietsliefhebbers zijn er eindeloze routes mogelijk door de nabijgelegen bossen, over de heidevelden en uiterwaarden.
Indeling:
Entree/hal met garderobe, toilet met fonteinmeubel en meterkast. Keuken in hoekopstelling met alle denkbare inbouwapparatuur waaronder een 4-pits inductiekookplaat met afzuigkap, combi oven, koelkast, vaatwasser en een Quooker. De woonkamer is ruim door de 2,40 meter aanbouw aan de achterzijde en geeft via de schuifpui toegang tot de tuin. De trapkast geeft veel bergruimte en de warmtepomp met buffervat staat hier opgesteld.
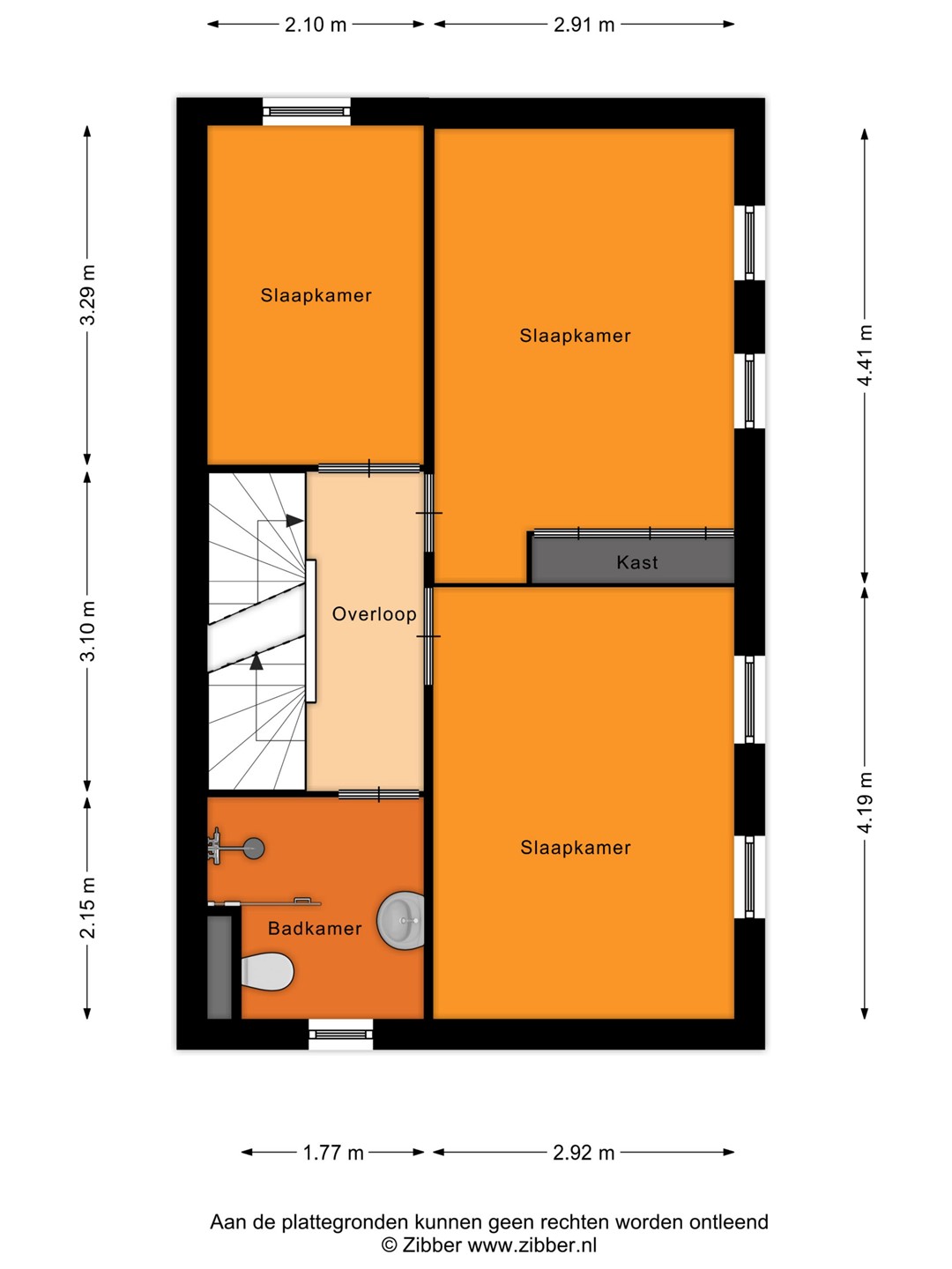
Eerste verdieping:
Overloop, drie slaapkamers en een badkamer. De hoofdslaapkamer is voorzien van een vaste kastenwand. De badkamer beschikt over een inloopdouche, een wastafelmeubel en een toilet.
Tweede verdieping:
Overloop met dakraam en aansluiting voor de wasapparatuur. Twee ruime slaapkamers waarvan één met groot dakraam.
Info:
- De gehele woning (m.u.v. de zolderverdieping) wordt verwarmd middels vloerverwarming;
- De warmtepomp betreft een Mitsubishi Ecodan lucht/water warmtepomp met 12 liter buffervat. Er is gekozen voor een zwaardere warmtepomp t.o.v. standaard (300 liter i.p.v. 200 liter);
- De gehele begane grond en eerste verdieping hebben stroomvoorzieningen voor screens;
- De woning heeft een eigen parkeerplaats.
Wij maken gebruik van de modelkoopovereenkomst van de NVM.
Vraagprijs € 575.000,- k.k.
Aanvaarding in overleg
Interesse in dit huis? Schakel direct uw eigen NVM aankoopmakelaar in. Uw NVM aankoopmakelaar komt op voor uw belang en bespaart u tijd, geld en zorgen.