Beschrijving
HET OPEN HUIS OP DINSDAG 7 OKTOBER 15:30u-17:00u IS VOL. U KUNT ZICH NIET MEER AANMELDEN!
Aan de rand van de buurtschap Oosterhuizen is deze karakteristieke woonboerderij gelegen op een prachtige kavel van 9.180 m2. Het betreft een boerderij, gebouwd in 1880, maar in de jaren ’80 heeft er een grootschalige renovatie plaatsgevonden waarbij er o.a. een nieuwe kap is geplaatst en hardhouten kozijnen. De boerderij is officieel opgesplitst in twee wooneenheden (13 en 13A). Daardoor is de woning zeer geschikt voor dubbele bewoning. De boerderij wordt omringd door een ruime tuin, meerdere bijgebouwen en weilanden. Ideaal voor wie houdt van het buitenleven, natuur, vrijheid of het houden van paarden of ander kleinvee.
Ondanks dat de woning buitenaf ligt is de bereikbaarheid uitstekend. De ligging t.o.v. de snelwegen, A1 en A50, zijn perfect, beiden zijn in circa 10 minuten te bereiken. In Lieren-Oosterhuizen zijn enkele voorzieningen te vinden zoals basisscholen en een golfbaan. Voor een ruimer aanbod winkels is Beekbergen op korte afstand gelegen, maar ook Apeldoorn ligt dichtbij.
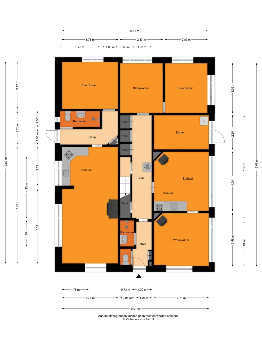
Indeling:
Entree/hal, meerdere inbouwkasten met aansluiting voor de was- en droogapparatuur, meterkast, seperaat toilet en badkamer met douche en wastafel. Daarnaast bevindt zich op de begane grond een woonkamer met gaskachel met aangrenzend de keuken met ruimte voor een eettafel. De keuken betreft een eenvoudig keukenblok met 4-pits gaskookplaat, afzuigkap en koelkast. Daarnaast zijn er twee slaapkamers aanwezig op de begane grond, waarvan één via de andere slaapkamer te bereiken is.
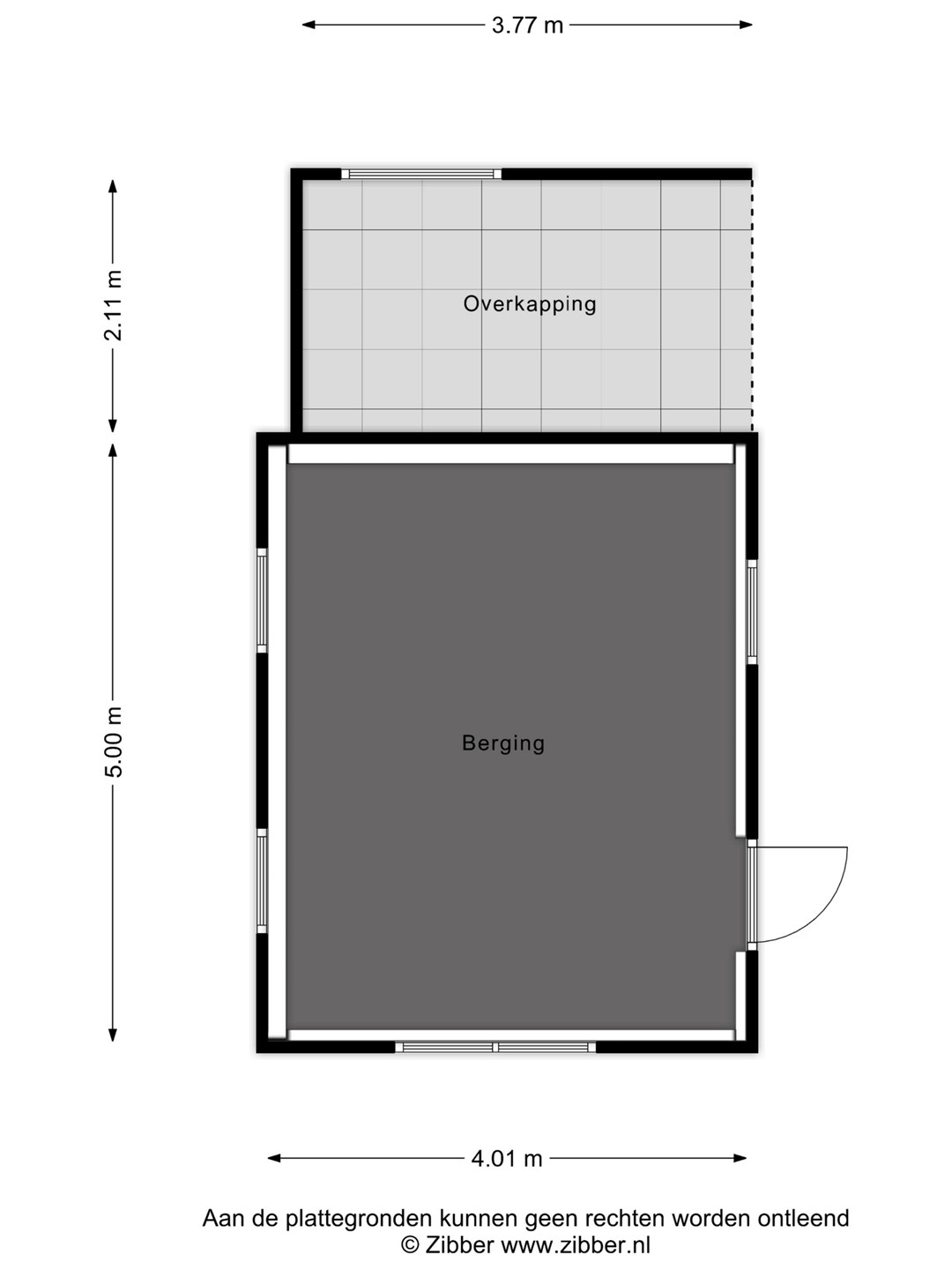
Vanaf de buitenzijde is er een inpandige berging te bereiken, maar deze is eventueel ook bij de woning te betrekken.
Aan de linkerzijde van de woning is Het Pompje 13A te bereiken middels een eigen entree/hal met meterkast. Er is een woonkamer aanwezig met open keuken v.v. inbouwapparatuur. Eén slaapkamer en een badkamer met douche, toilet en wastafel.
Verdieping:
Via een vaste trap wordt de ruime verdieping bereikt. Deze ruimte is ingedeeld met twee slaapkamers en een zeer grote overloop met mogelijkheden tot het realiseren van meerdere slaapkamers en/of badkamer.
Info:
- De daken van alle bijgebouwen zijn vervangen en vrij van asbest;
- Op het terrein is een grondwaterpomp aanwezig;
- De woning beschikt over een definitief energielabel G (geldig tot 22-09-2035).
Wij maken gebruik van de modelkoopovereenkomst van de NVM. Daarnaast worden er extra clausules toegevoegd, te weten de niet-zelfbewoningsclausule, asbestclausule en ouderdomsclausule.
Vraagprijs € 750.000,- k.k.
Aanvaarding in overleg
Interesse in dit huis? Schakel direct uw eigen NVM aankoopmakelaar in. Uw NVM aankoopmakelaar komt op voor uw belang en bespaart u tijd, geld en zorgen.